3187 Quebec Street, Mount Pleasant VE, Vancouver East
SOLD

3187 Quebec Street

Mount Pleasant VE, Vancouver East

3 Bedrooms
3 Bathrooms
1 under building Parking
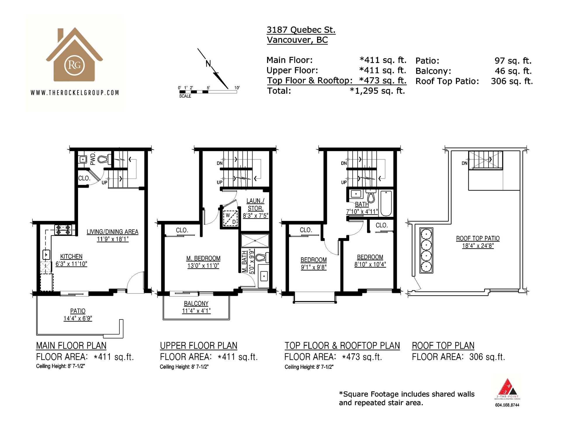
1,295 sqft
$1,328,000
Share this property with a friend
Q16 - One of Mount Pleasant’s finest boutique townhome complexes built by Handmade Contemporary Homes. This wonderful unit offers almost 1300 SF of contemporary living space on 3 thoughtful levels. Main floor offers open concept living dining and modern kitchen with separate island and sli
Q16 - One of Mount Pleasant’s finest boutique townhome complexes built by Handmade Contemporary Homes. This wonderful unit offers almost 1300 SF of contemporary living space on 3 thoughtful levels. Main floor offers open concept living dining and modern kitchen with separate island and sliding glass doors to your private patio. A pretty powder room and additional hidden storage complete the floor. Upstairs you’ll find a generous Master bedroom with private ensuite and balcony, laundry and bonus storage. Above are 2 additional bedrooms and lovely full bath. The cherry on top is your private roof top deck where you can entertain all summer long. Finishings are lovely throughout and the design and palette will welcome your furnishings with ease. 1 parking stall, 1 locker and walking distance to the best that Cambie and Main street neighbourhoods has to offer.

FEATURES:

  • Custom roller shades throughout
  • Navien hot water on demand
  • LG Front load washer & dryer
  • Excellent storage (hidden on main floor, large room on 2nd floor & 1 locker)
  • 1 parking stall 
MAIN FLOOR:
  • Hardwood flooring
  • Double slider doors to large front patio
  • Generous coat closet
  • Contemporary glass and metal rail system on stairs
  • Separate dining area with modern light fixture
  • Lovely 2 piece powder room with floating “square bowl” mounted sink 
KITCHEN:
  • Liebherr fridge with double drawer freezer
  • Panasonic microwave/hoodfan
  • 5 burner gas stove
  • Porter & Charles integrated dishwasher
  • Clean line flat cabinetry with white gloss uppers and Wenge wood lower cabinets
  • Quartz counters
  • Large double under mound stainless steel sink with chrome fixture
  • Good size separate island for additional working space or eating
 UPPER FLOORS:
  • Lovely master retreat with private full ensuite
  • Balcony off the Master to enjoy your morning coffee
  • Separate, large laundry/storage room bonus
  • 2 good sized bedrooms up
  • Deep set window seat in top floor bedroom
  • Generous closets with custom fittings
  • Full bath on top floor 
  • Easy access to your large roof top deck
  • Roof top door acts like giant skylight to allow loads of light 
BATHROOMS:
  • Quartz counters with undermount sinks
  • Flat panel cabinetry on the vanities
  • Riobel chrome fixtures throughout
  • Nuheat floor (in master ensuite)
  • Soft close doors and drawers
  • Large walk in shower in master bath 
  • Tub/shower combo in main bath

SCHOOL CATCHMENTS

  • K - 7 Simon Fraser Elementary
  • 8 - 12 Eric Hamber Secondary
  • French Immersion 
  • 6 - 7 General Gordon Elementary
  • 8 - 12 Kitsilano Secondary
More Details about 3187 Quebec Street
  • MLS®: R2409713
  • Bedrooms: 3
  • Bathrooms: 3
  • Type: Townhome
  • Building: Q16
  • Square Feet: 1,295 sqft
  • Full Baths: 2
  • Half Baths: 1
  • Taxes: $3,408.90
  • Maintenance: $403.49
  • Parking: 1 under building
  • Storage: Locker
  • Storeys: 3 Storey plus rooftop deck
  • Year Built: 2016
  • Style: 3 Storey
  • Construction: Wood Frame
Floor Plans and PDFs

Contact us now to see this property














Address on Google Mapsmap marker icon
Map View
Street View

More About Mount Pleasant VE, Vancouver East

lattitude: 49.2568348

longitude: -123.1033961


Share Location